4 Bedroom
3 Bathroom
1,367 ft2
Bi-Level
Forced Air
$539,000
Welcome to your dream family retreat! This well-maintained 3 Bed, 3 Bath, bi-level home offers over 1,360 sq ft of comfortable living space, with inviting outdoor features. Nestled in the desirable Larkspur community, it's an ideal spot for families seeking convenience and natural beauty. A spacious layout of 3 generous bedrooms and 3 full bathrooms, including a primary suite with a private sunroom – your personal oasis for morning coffee or evening relaxation. For entertainment or family fun enjoy the expansive family room designed for gatherings, movie nights, and everyday fun. If that is not enough a beautifully landscaped yard with a large area for BBQs and summer evenings sitting around on the patio furniture and soaking in the sunshine. This well-maintained home features newer appliances, furnace, and hot water tank ensure worry-free living and energy efficiency. Just steps from Meadowbrook Lake or Wild Rose Park for leisurely walks and playground adventures. (id:47041)
Property Details
|
MLS® Number
|
E4465094 |
|
Property Type
|
Single Family |
|
Neigbourhood
|
Wild Rose |
|
Amenities Near By
|
Schools, Shopping |
|
Features
|
No Back Lane, Exterior Walls- 2x6", No Animal Home, No Smoking Home |
|
Parking Space Total
|
4 |
|
Structure
|
Deck |
Building
|
Bathroom Total
|
3 |
|
Bedrooms Total
|
4 |
|
Amenities
|
Vinyl Windows |
|
Appliances
|
Dishwasher, Dryer, Garage Door Opener, Hood Fan, Oven - Built-in, Microwave, Stove, Washer, Refrigerator |
|
Architectural Style
|
Bi-level |
|
Basement Development
|
Finished |
|
Basement Type
|
Full (finished) |
|
Constructed Date
|
1990 |
|
Construction Style Attachment
|
Detached |
|
Fire Protection
|
Smoke Detectors |
|
Heating Type
|
Forced Air |
|
Size Interior
|
1,367 Ft2 |
|
Type
|
House |
Parking
Land
|
Acreage
|
No |
|
Fence Type
|
Fence |
|
Land Amenities
|
Schools, Shopping |
|
Size Irregular
|
666.85 |
|
Size Total
|
666.85 M2 |
|
Size Total Text
|
666.85 M2 |
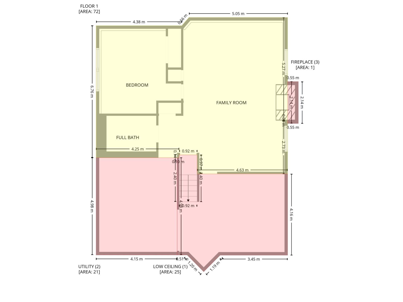
Rooms
| Level |
Type |
Length |
Width |
Dimensions |
|
Above |
Bedroom 2 |
3.99 m |
3.42 m |
3.99 m x 3.42 m |
|
Basement |
Kitchen |
3.84 m |
2.65 m |
3.84 m x 2.65 m |
|
Basement |
Family Room |
7.01 m |
7.64 m |
7.01 m x 7.64 m |
|
Basement |
Bedroom 3 |
4.1 m |
4.34 m |
4.1 m x 4.34 m |
|
Main Level |
Living Room |
3.36 m |
4.54 m |
3.36 m x 4.54 m |
|
Main Level |
Dining Room |
5.38 m |
4.45 m |
5.38 m x 4.45 m |
|
Main Level |
Primary Bedroom |
3.99 m |
4.78 m |
3.99 m x 4.78 m |
|
Main Level |
Bedroom 4 |
2.93 m |
2.81 m |
2.93 m x 2.81 m |
|
Main Level |
Sunroom |
3.94 m |
3.05 m |
3.94 m x 3.05 m |
https://www.realtor.ca/real-estate/29080908/3772-30-st-nw-edmonton-wild-rose